+358 40 0750 639 kapiaisen.lomamokit@co.inet.fi Facebook Instagram
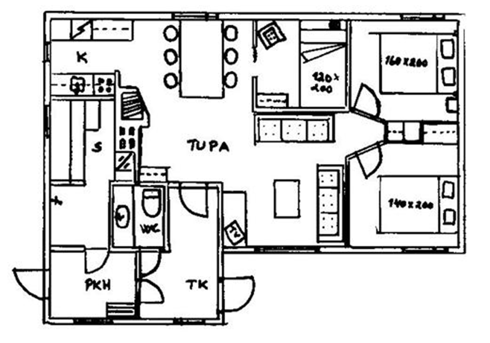
Perustiedot
  • lautarakenteinen mökki
  • 90 m²
  • rakennusvuosi: 1977
  • peruskorjauksia 1993, 2015, saunaosasto peruskorjattu 2018
  • pihapiirissa hirsiaitta kahdelle
Huoneet
  • 3 makuuhuonetta
  • tupakeittiö
  • puulämmitteinen sauna
  • pesuhuone
  • suihku, pukuhuone, wc
Makuuhuoneet
  • 1 kahden hengen makuuhuone, parisänky 160 cm
  • 1 kahden hengen makuuhuone, sänky 140 cm
  • 1 yhden hengen makuuhuone, sänky 120 cm
  • lisävuoteet: max. 2 henkilöä
  • levitettävä sohva 140 cm ja sohva 80 cm
  • pihapiirissa hirsiaitta, jossa kesäaikaan voi majoittua kaksi henkilöä
Mukavuudet
  • sähkölämmitys
  • kylmä ja lämmin vesi
  • varaava takka
  • televisio, dvd-soitin, radio/cd-soitin
  • pölynimuri, silitysrauta, hiustenkuivain
  • pyykkinpesukone (4kg)
Keittiövarustus
  • astiasto 8 henkilölle, ruoanlaittovälineet
  • sähköliesi/uuni, liesituuletin
  • mikroaaltouuni
  • astianpesukone
  • kahvinkeitin, vedenkeitin, leivänpaahdin
  • jenkkijääkaappi
Ulkona
  • hirsiaitta kahdelle
  • matala etelään suuntautuva hiekkaranta
  • soutuvene
  • grillikatos, jossa kotakeittiö
  • puuliiteri
  • auton lämmityspistoke
  • soutuvene ja pelastusliivit
  • pihakeinu
  • mökki noin 15 m rannasta
  • lähinaapurit noin 100 m
Lähellä
  • Helsinki noin 200 km
  • Lappeenranta noin 82 km
  • Mikkeli noin 50 km
  • Kouvola noin 60 km
  • Mäntyharju noin 30 km

Tee varaus